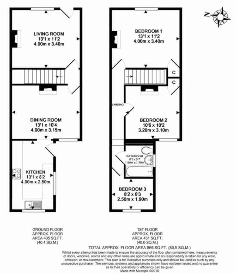
Internally, this cottage offers character and charm with accommodation arranged over two floors and in brief comprises; living room, dining room, a good size fitted kitchen with a range of base and eye level units and a door to the garden. Stairs access the first floor landing; three bedrooms and a three piece family bathroom. The principal and second bedrooms are spacious and have fitted wardrobes and a feature fireplace each.
To the rear of the property the garden is established and enclosed, laid to lawn with a patio area in fence and hedge surround. Gated side access leads to an alley way and front garden, with steps onto the street.


Then all you need to do is get in touch to ask any questions or arrange a viewing. We’d love to show you around! Call on 01279 501 500 or press the button below