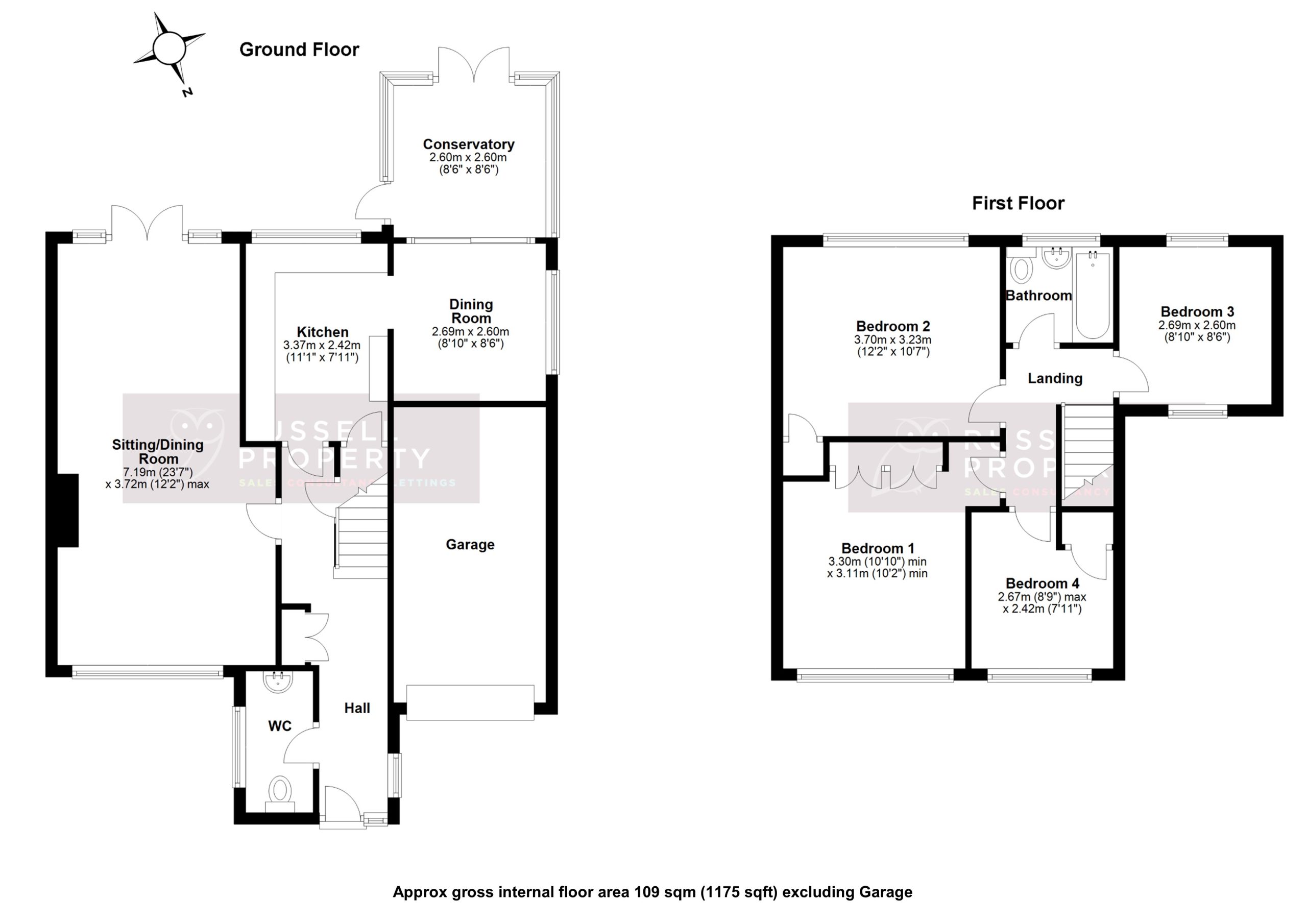
Internally, the accommodation is arranged over two floors and comprises; entrance hall with understairs storage and downstairs wc.; the dual aspect sitting room benefits from a feature fireplace and French doors to the garden. The fitted kitchen, with a range of base and eye level units leads into the dining room. With a conservatory to the rear.
Stairs to the first floor accesses two double and two single bedrooms and a three piece family bathroom.
South facing gardens to the rear are established, laid to lawn with planted borders and a patio entertainment area. The gated side access leads to the driveway and the single integral garage.


Then all you need to do is get in touch to ask any questions or arrange a viewing. We’d love to show you around! Call on 01279 501 500 or press the button below