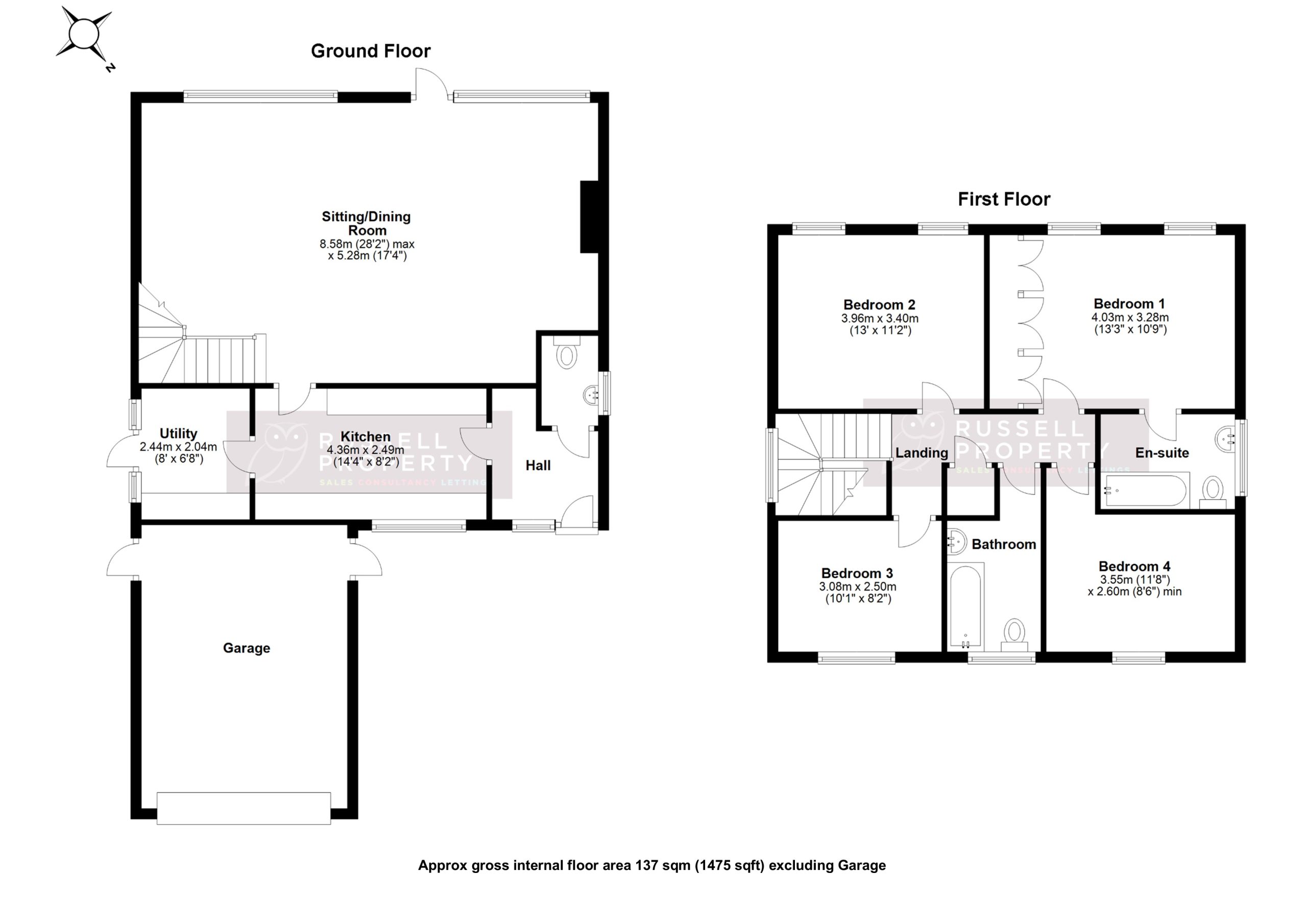
Within a plot of approximately half an acre, this detached property offers scope for some modernisation throughout; the accommodation is arranged over two floors and in brief comprises; entrance hall with wc., fitted kitchen with a range of base and eye level units and a separate utility room with a door to the garden. The bright open plan sitting/dining room benefits from a feature fireplace and door to the garden. Stairs from the sitting room access the four double bedrooms and family bathroom on the first floor. The principal bedroom benefits from built in wardrobes and an ensuite bathroom.
Extensive private gardens to the rear are south west facing; with a well stocked pond, a patio entertainment area and access to the open fields to the rear. Gated side access leads to the double garage, driveway parking for a number of vehicles and a low maintenance garden.


Then all you need to do is get in touch to ask any questions or arrange a viewing. We’d love to show you around! Call on 01279 501 500 or press the button below