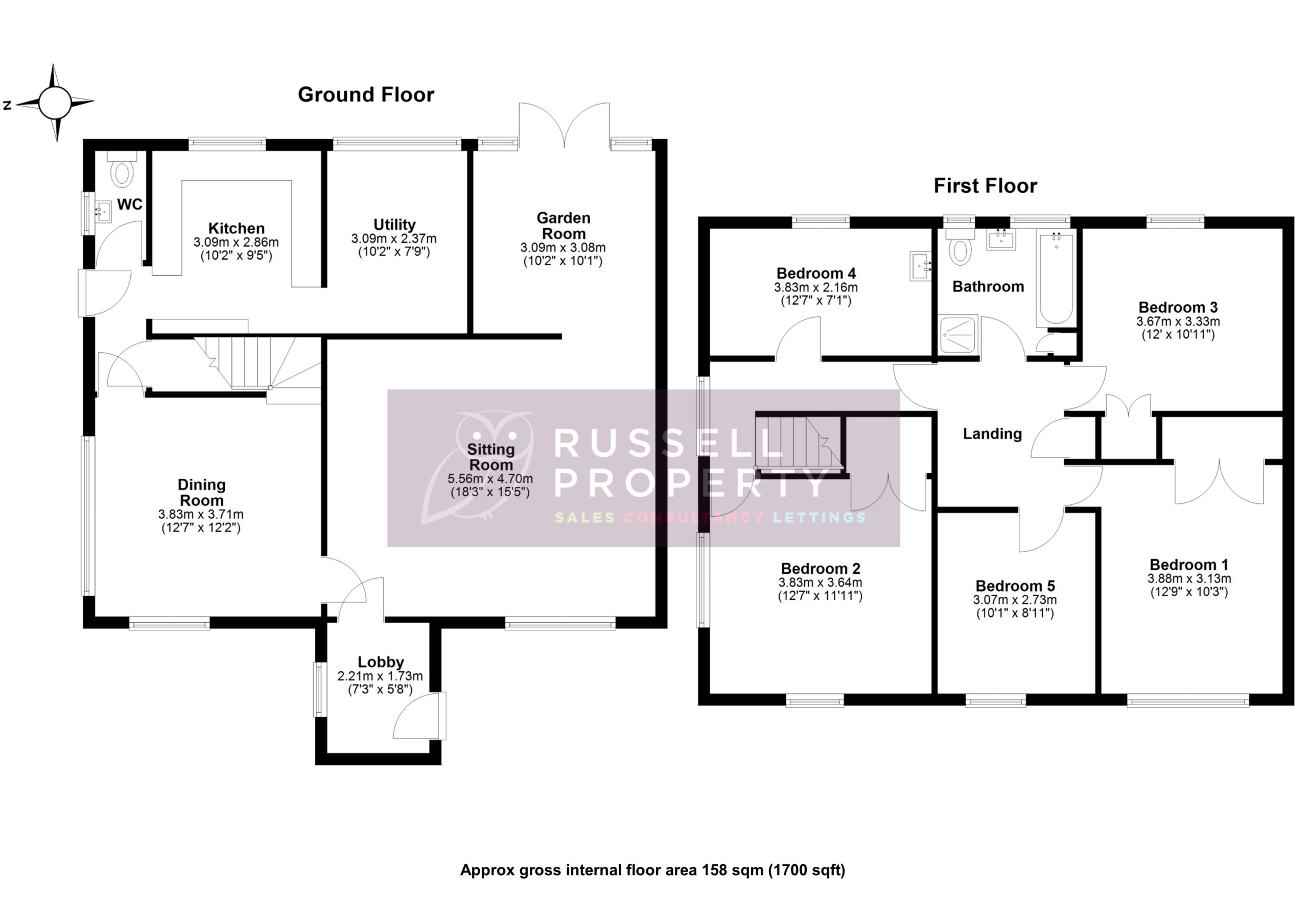
Internally, arranged over two floors the accommodation comprises; entrance lobby with access to the sitting room which leads through to the garden room with French doors to the garden. A dual aspect dining room leads through to the kitchen, which in turn is fitted with a range of base and eye level units; a separate utility room and wc. Stairs ascend to the first floor landing; five bedrooms and a four piece family bathroom. Bedrooms one, two and three all benefit from built in wardrobes and bedroom four benefits from a sink unit.
Gardens to the rear are established, with a patio entertainment area and steps up to the main garden which is laid to lawn in fence surround; to the front of the property, the garden is laid to lawn.


Then all you need to do is get in touch to ask any questions or arrange a viewing. We’d love to show you around! Call on 01279 501 500 or press the button below