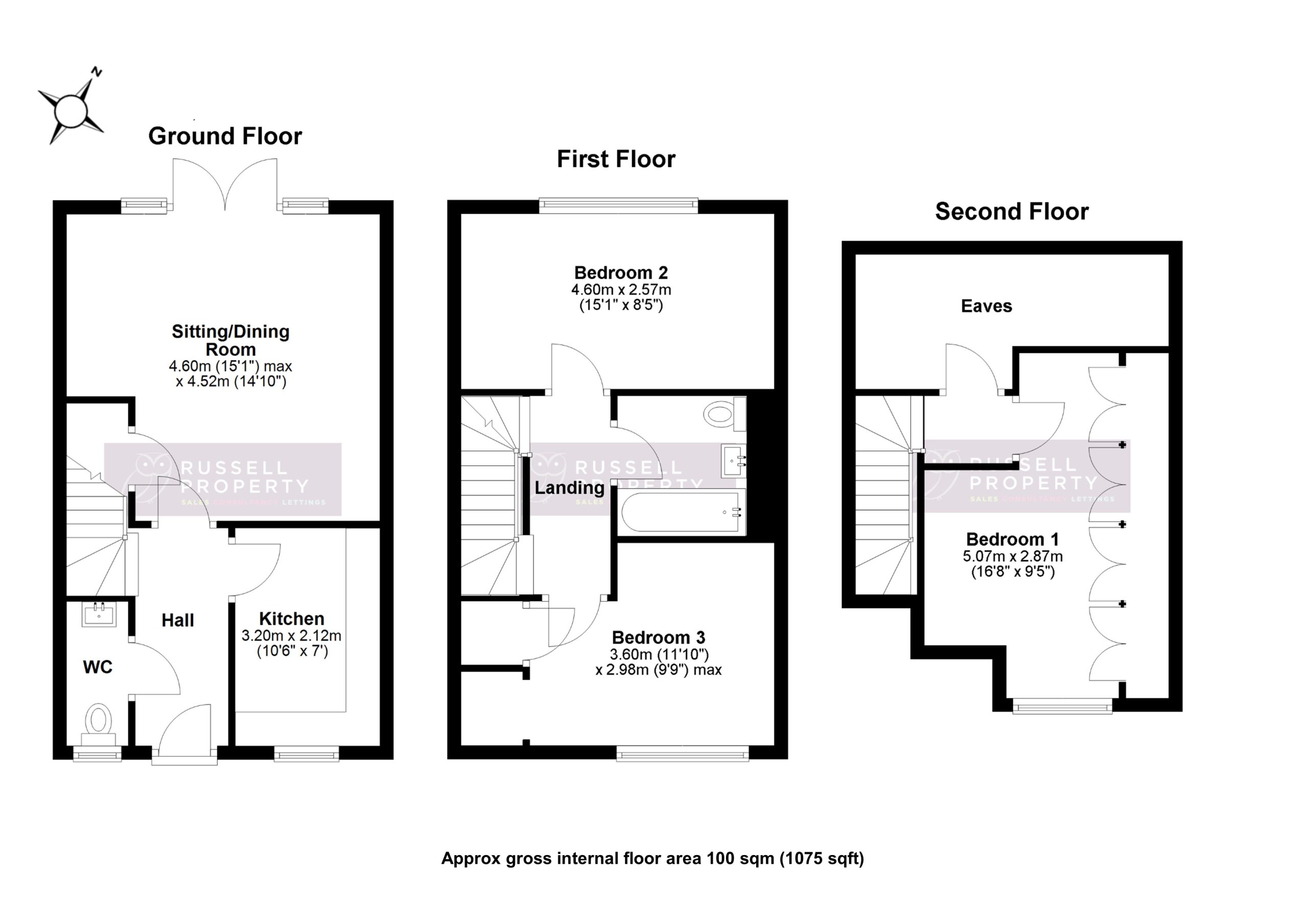
Arranged over three floors, the internal accommodation in brief comprises; entrance hall with wc; the kitchen offers a range of base and eye level units and fitted appliances. The open plan sitting/dining room is bright and airy with French doors to the rear garden. Stairs from the hall access the first floor, to double bedrooms and a family bathroom. The principal bedrooms is located on the second floor and benefits from fitted wardrobes and an eaves storage area.
Gardens to the rear are low maintenance, laid to lawn with a patio entertainment area in fence surround. Gated rear access leads to off street parking. An electrical car charging point is also located here.


Then all you need to do is get in touch to ask any questions or arrange a viewing. We’d love to show you around! Call on 01279 501 500 or press the button below