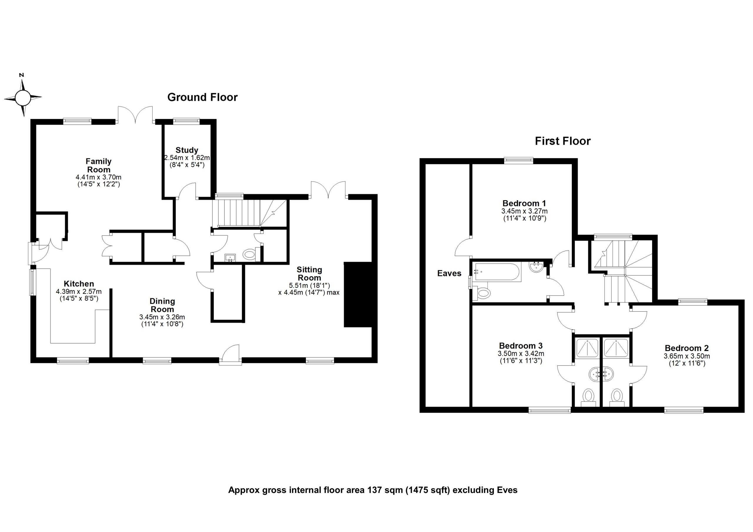
The generous accommodation is arranged over two levels and enjoys a private rear garden and very large driveway frontage. Internally the accommodation comprises; entrance hall with dining room and living room. The dining room leads into the kitchen/breakfast room and also has a door to the inner hall where there is a study/dressing room and cloakroom. The living room is open to another smaller sitting area and the internal hallway houses stairs to the first floor.
On the first floor, there are three lovely double bedrooms, two with en-suite shower rooms and a family bathroom with three piece suite.
Externally, the rear garden is mainly laid to lawn with established borders. There is also a raised entertainment area. A large shingled driveway lies to the front of the property, which provides off street parking for a number of vehicles.

Then all you need to do is get in touch to ask any questions or arrange a viewing. We’d love to show you around! Call on 01279 501 500 or press the button below