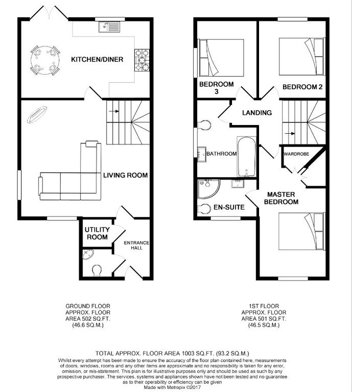
With the benefit of a garage and driveway parking the accommodation in this property is arranged over two floors and comprises; entrance hall with wc., and utility room, dual aspect sitting room, fully fitted kitchen with base and eye level units/dining room with French doors to the rear garden. Stairs access the first floor landing, three bedrooms and family bathroom. The principal bedroom benefits from built in wardrobes and an ensuite.
Immediately to the rear of the property, the garden is enclosed and has raised borders and a separate patio entertainment area. A private gate and footpath lead to the front of the property, single garage and driveway parking.


Then all you need to do is get in touch to ask any questions or arrange a viewing. We’d love to show you around! Call on 01279 501 500 or press the button below