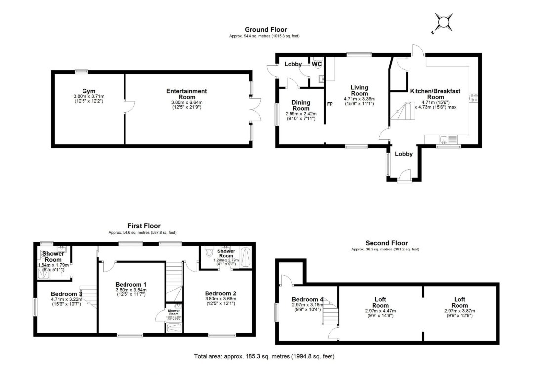
Along with the period charm in this home, the property also boasts the feature of a converted barn housing an entertainment room, gym and store room - which offers the potential to be converted to an annexe (subject to planning permission). Within the main property, the accommodation is arranged over three floors and in brief comprises; entrance lobby which leads through into the kitchen/breakfast room, which is fitted with a range of base and eye level units. The dual aspect living room leads into the dining room, a lobby to the rear of the property along with a wc.
Stairs from the kitchen ascend to the first floor; three double bedrooms, each with either an ensuite shower or bathroom. A further bedroom and loft rooms are located on the second floor.
The converted barn sits to the rear of the property in South East facing garden; laid mainly to lawn with mature planting and fence and wall surround.
The property also benefits from ample off street parking.

Then all you need to do is get in touch to ask any questions or arrange a viewing. We’d love to show you around! Call on 01279 501 500 or press the button below