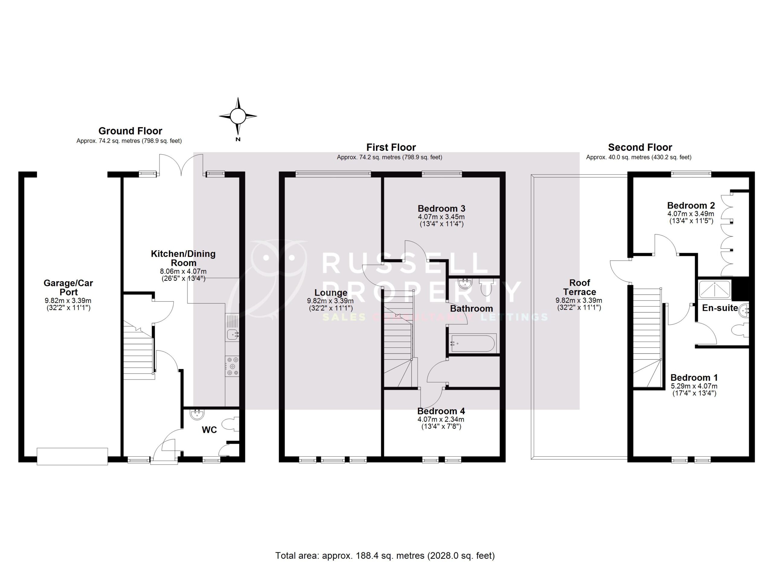
The internal accommodation comprises; Entrance hallway, ground floor cloakroom, kitchen/dining room with a range of base and eye level units and integrated appliances, breakfast bar and understairs storage cupboard, dining area and French doors that open onto the rear garden.
On the first floor there is a dual aspect sitting room enjoys views over the rear garden. There are two double bedrooms and a three piece family bathroom. On the second floor there are two further double bedrooms, one with built in wardrobes; the principal bedroom has an en suite shower room. A private and charming roof terrace is accessed from the landing.
Externally the property enjoys an enclosed rear garden which is laid to lawn with a patio immediately to the rear in wall surround. There is rear access to the garage which has space for two cars.
Agents Note : This estate is subject to a service charge of approx £379 per annum.


Then all you need to do is get in touch to ask any questions or arrange a viewing. We’d love to show you around! Call on 01279 501 500 or press the button below