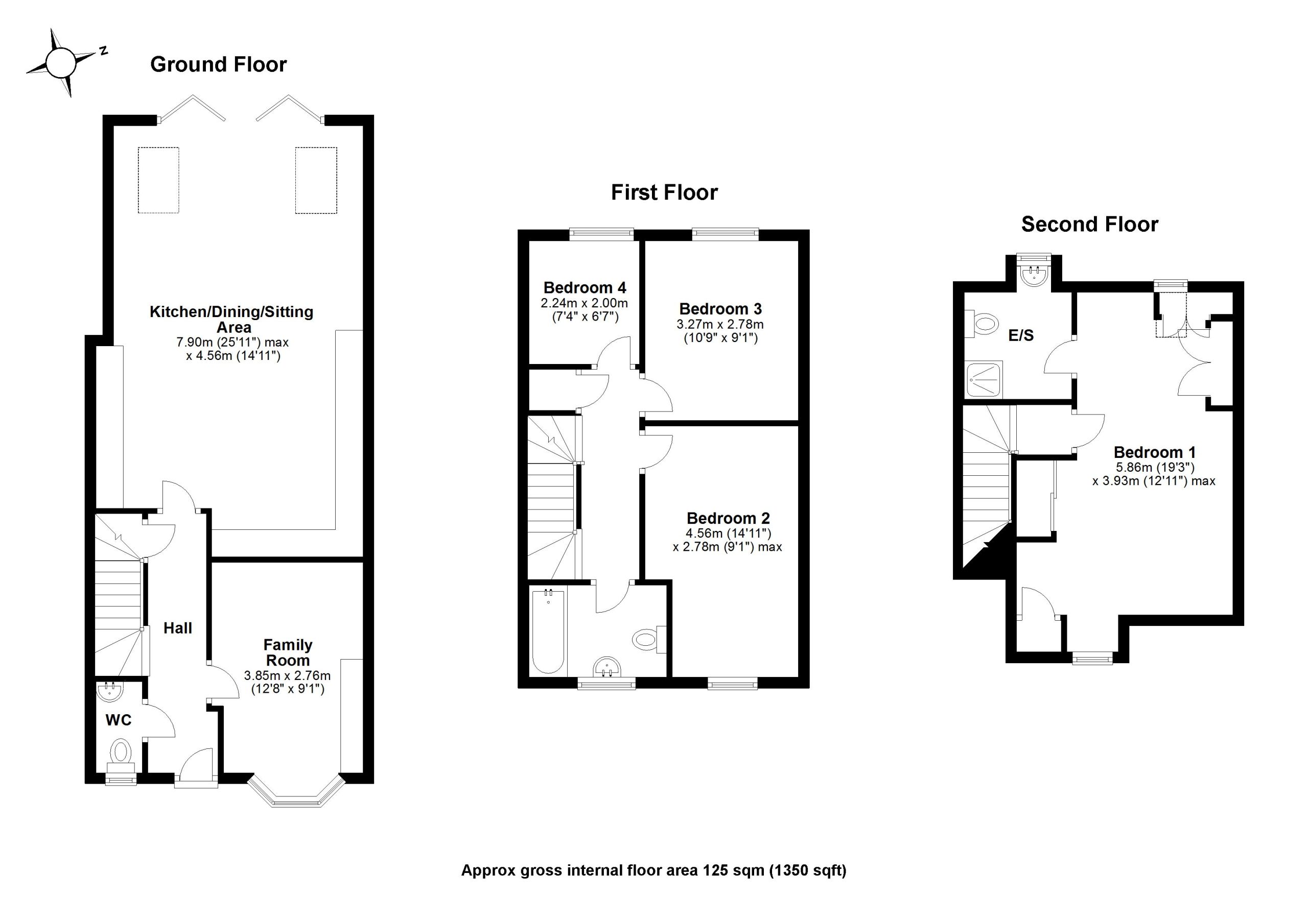
Internally, the accommodation in brief comprises; entrance hallway with understairs cupboard and downstairs wc. A family room with a large bay window; an open plan kitchen/diner/living area opens out to the garden through bi-fold doors. The kitchen offers a range of base and eye level units and integrated appliances. Stairs to the first floor access two double bedrooms and a single bedroom. The family bathroom is fitted with a three piece suite.
Further stairs lead to the second floor where the dual aspect principal bedroom has fitted wardrobes and an en-suite shower room.
Externally, the private west facing rear garden has a patio entertainment area, is laid to lawn with established planting in fence surround. A door from the garden accesses the single garage with driveway parking to the side of the property.


Then all you need to do is get in touch to ask any questions or arrange a viewing. We’d love to show you around! Call on 01279 501 500 or press the button below