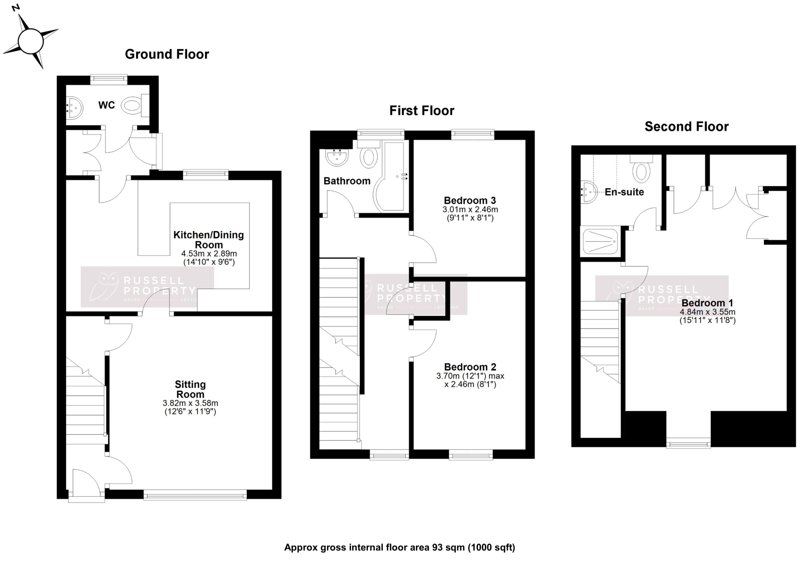
Internally, the accommodation is arranged over three floors and in brief comprises : entrance hall, sitting room with understairs storage cupboard and entrance into the fully fitted kitchen/dining room which leads through to a cloakroom and access to the rear garden. Stairs to the first floor access two bedroom and a three piece family bathroom. The principal bedroom is on the second floor and benefits from built in wardrobes and an ensuite shower room.
Gardens to the rear are enclosed and laid to lawn with planting and a patio area in fence surround. A side gate leads to the garage and a private parking area for two vehicles.


Then all you need to do is get in touch to ask any questions or arrange a viewing. We’d love to show you around! Call on 01279 501 500 or press the button below