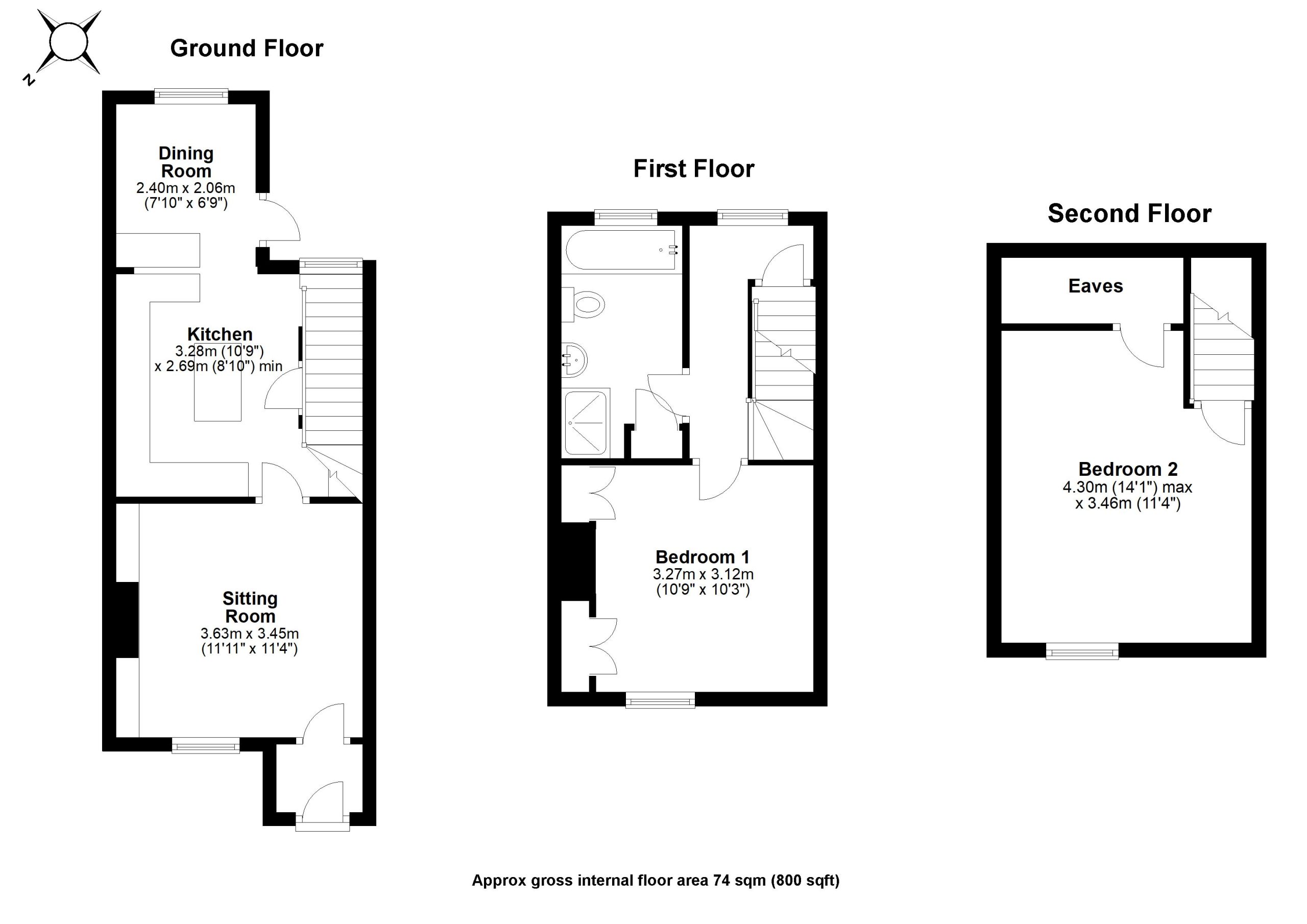
Accommodation comprises; entrance into the porchway which then leads you into the characterful living room benefiting from wooden flooring, open fireplace and built in storage. The
open plan kitchen/breakfast room benefits from integrated appliances and island with access to the garden.
Stairs rise from the kitchen to the first floor where there is a good size double principal bedroom with integral storage wardrobes and a four piece family bathroom. Stairs rise again to the second floor where you will find a further double bedroom benefiting from eaves storage.
Outside the property benefits from a beautiful private courtyard rear garden. To the front of the property lies resident’s parking spaces with permits available via the council.

Then all you need to do is get in touch to ask any questions or arrange a viewing. We’d love to show you around! Call on 01279 501 500 or press the button below