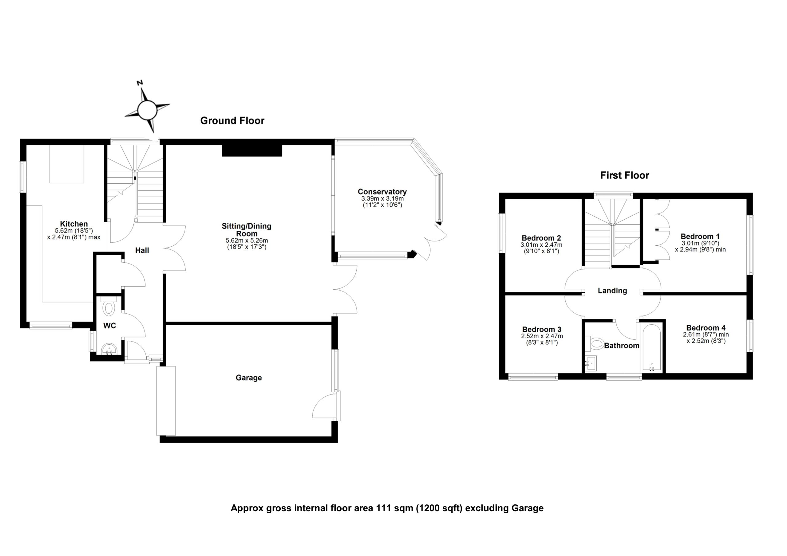
Offering spacious accommodation, a recently refitted kitchen and bathroom, this family home has accommodation arranged over two floors and in brief comprises; entrance hall with wc., and storage cupboard. The dual aspect, modern fitted kitchen offers a range of base and eye level units with dining area. French doors lead to a spacious sitting/dining area with a feature fireplace, doors to a conservatory and French doors to the garden. Stairs to the first floor access four good size bedrooms and a family bathroom. The principal bedroom benefits from built in wardrobes.
Externally, to the rear of the property the garden is well maintained with a patio and decked entertainment areas, children's play area, lawn and raised border in fence surround. A personal door accesses the garage and side access leads to the driveway which provides off road parking for a number of vehicles.


Then all you need to do is get in touch to ask any questions or arrange a viewing. We’d love to show you around! Call on 01279 501 500 or press the button below