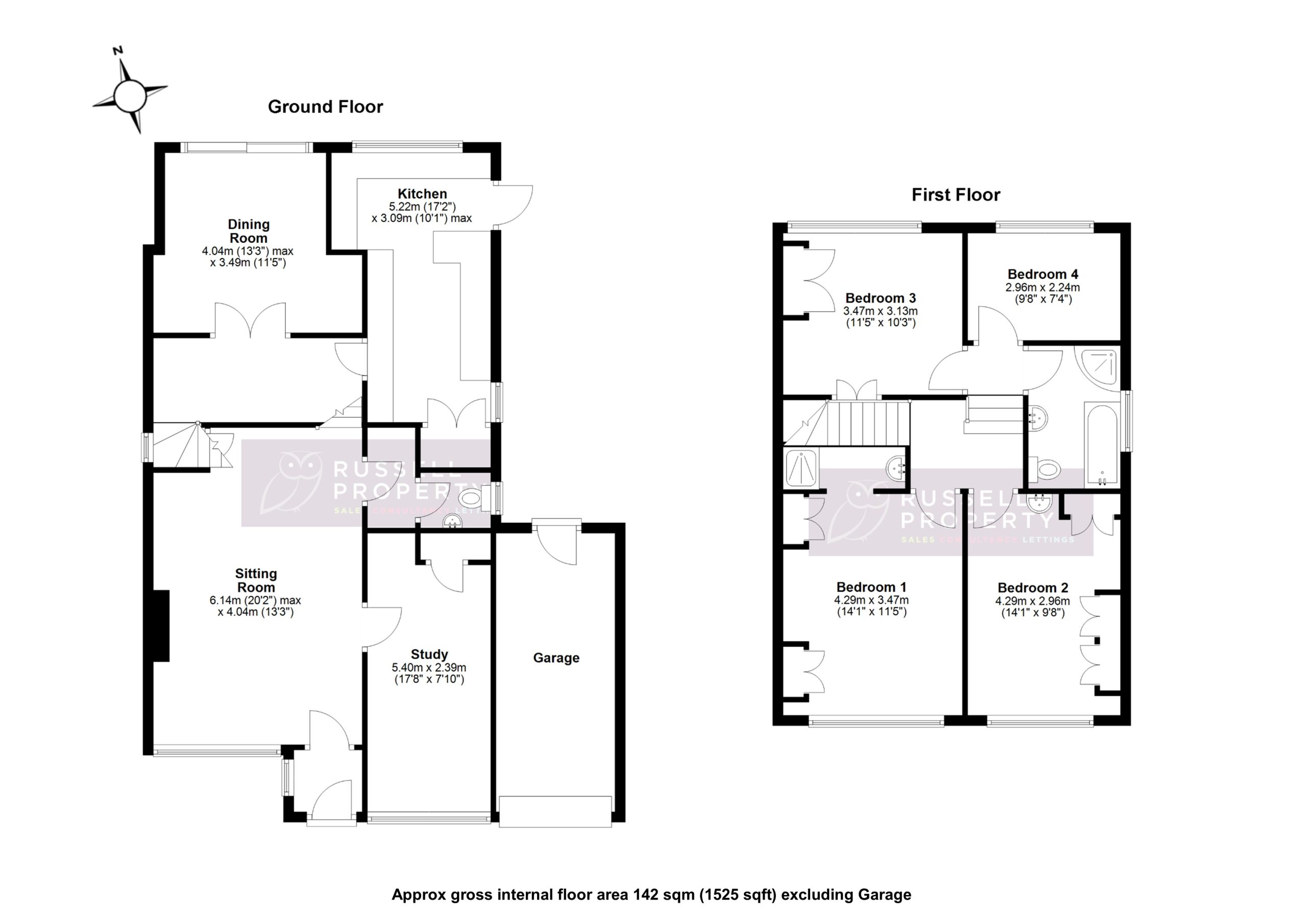
Arranged over two floors, the spacious and well presented accommodation comprises; an entrance porch which leads into the sitting room with feature fireplace and door into the study and cloakroom with wc. Access from a mezzanine areas accesses the dining room with patio doors to the garden. The kitchen is fitted with a range of base and eye level units and a door to the garden. Stairs access the first floor landing, four bedrooms and a four piece family bathroom. Three of the bedrooms benefit from built in wardrobes; bedroom two has a vanity unit and the principal bedroom has an ensuite shower room.
Gardens to the rear are landscaped and tiered with a patio entertainment area, raised borders with established planting in fence surround. Gated side access leads to the front garden, driveway parking for a number of vehicles and a single garage.


Then all you need to do is get in touch to ask any questions or arrange a viewing. We’d love to show you around! Call on 01279 501 500 or press the button below