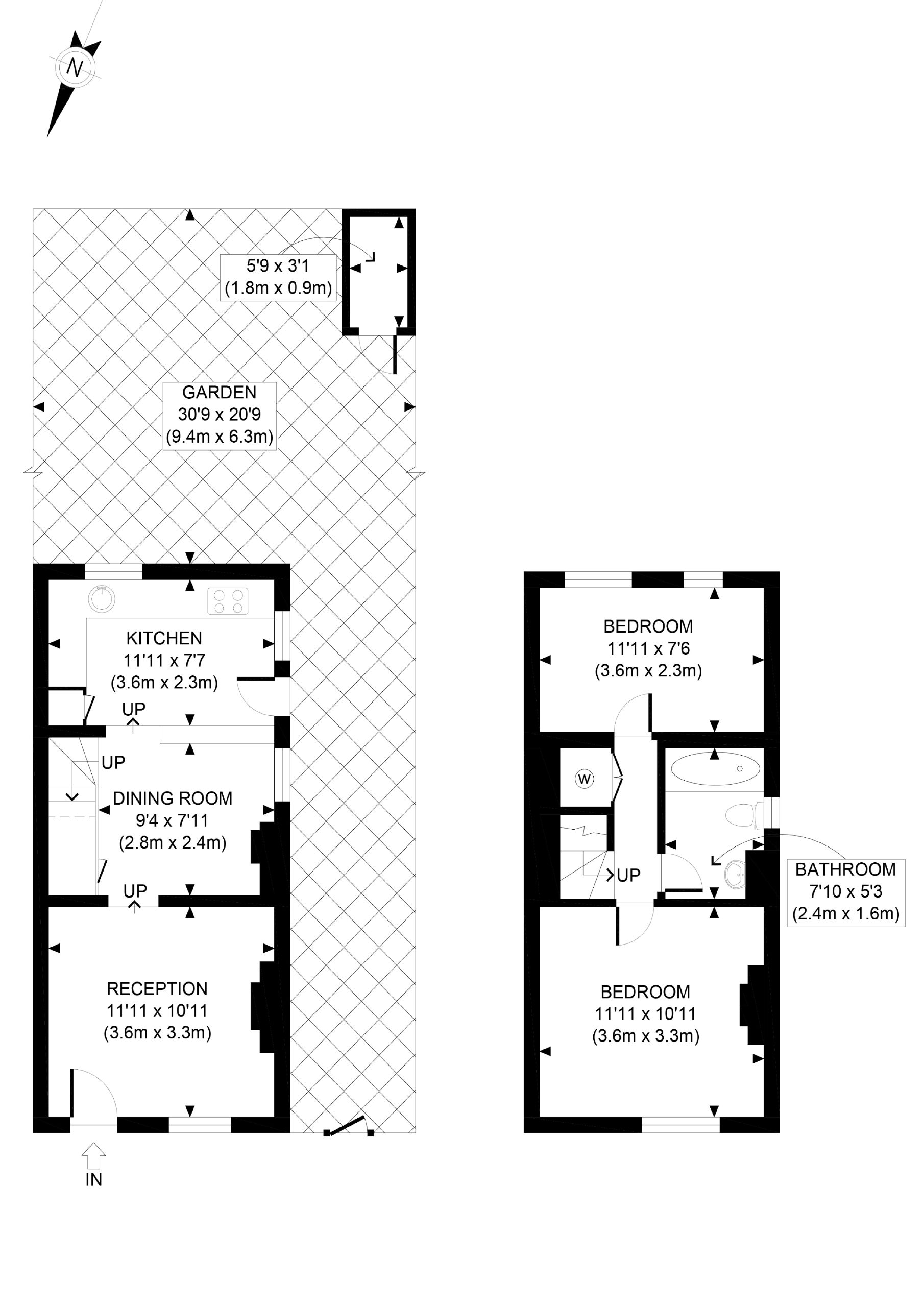
The property is well presented throughout, boasting many original features. The internal accommodation is arranged over two floors and comprises; entrance in to the reception room with a feature fireplace, dining area, fitted kitchen with a range of base and eye level units, integrated appliances and breakfast bar. Stairs to the first floor access two double bedrooms and a three piece family bathroom.
Gardens to the rear are south facing and laid to lawn with a patio entertainment area, raised planted borders and brick built shed providing outside storage. Gated side access leads to the front of the property and the paved off street parking for one small car.


Then all you need to do is get in touch to ask any questions or arrange a viewing. We’d love to show you around! Call on 01279 501 500 or press the button below