Sat in a small cul-de-sac, just opposite a green this family home is well presented throughout.
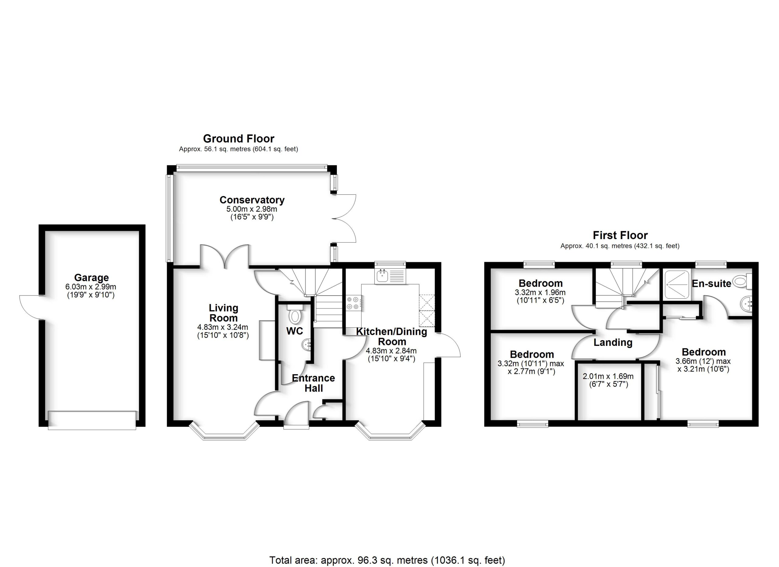
Internally the accommodation is arranged over two floors and in brief comprises; entrance hall with wc., and understairs cupboard. The kitchen/diner with a bay fronted window is fitted with a range of base and eye level units, fitted appliances and a door to the garden. The dual aspect has double doors which lead into the large double glazed conservatory and double doors to the garden. Stairs from the hall ascend to the first floor; three good size bedrooms and a three piece family bathroom. The principal bedroom benefits from built in wardrobes and a shower room ensuite.
Externally, the property has a secluded, part-walled and mainly laid to astro-turf lawn with landscaped borders, paved patio entertainment area and side gate to the driveway/carport and there is also a personal door to the garage. The property is approached via road into this small cul-de-sac with houses surrounding the central green (the title of this property is up to this central green). A covered carport/driveway leads to the single detached garage.


Then all you need to do is get in touch to ask any questions or arrange a viewing. We’d love to show you around! Call on 01279 501 500 or press the button below