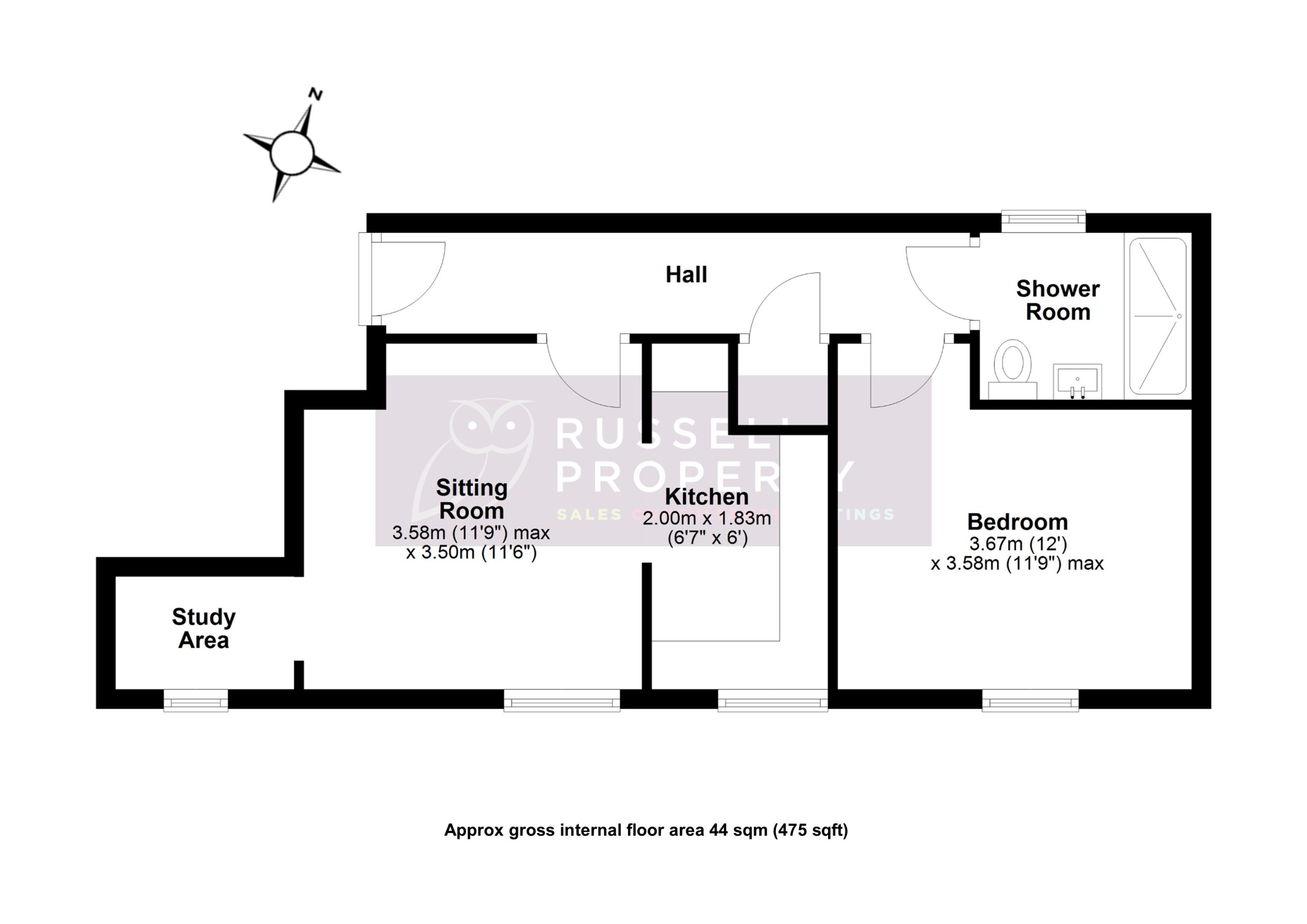
Accessed through a communal entrance hall, this apartment offers a spacious living room with a separate study area; open plan access to the fully fitted kitchen with a range of base and eye level units. The hall leads to the shower room, with a walk-in shower; a double bedroom
With allocated parking.
Russell Property have not had sight of the lease; however, we understand from the vendor that there are 130 years remaining ; the maintenance charge to be approximately £1532 and ground rent of £200 per annum.


Then all you need to do is get in touch to ask any questions or arrange a viewing. We’d love to show you around! Call on 01279 501 500 or press the button below