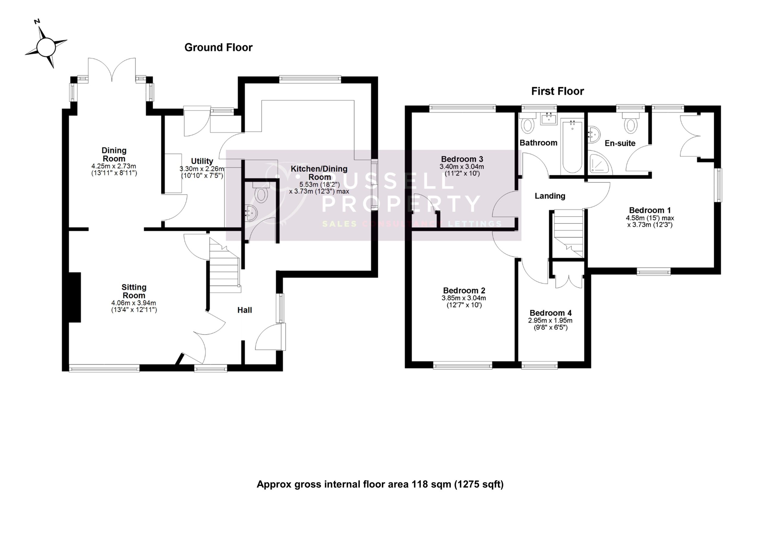
Internally, the bright and airy accommodation within this property is arranged over two floors and in brief comprises; entrance hall with cloakroom. The sitting room with a fireplace and understairs cupboard leads through to the dining room with French doors to the garden. The kitchen/dining room offers a range of fitted base and eye level units and seating area and patio doors to the garden. A large utility room also has fitted units and a door to the garden. Stairs to the first floor access three good size bedrooms and a single bedroom (currently used as a study) along with a family bathroom. The triple aspect principal bedroom benefits from built in wardrobes and an ensuite shower room.
With well presented gardens to the front and rear, the private rear garden enjoys a large wrap around patio entertainment area, raised lawn and planted borders. Access via a front gate and personal doors lead to the garage and driveway, which provides parking for several vehicles. The garden to the front is laid to lawn with established planting.


Then all you need to do is get in touch to ask any questions or arrange a viewing. We’d love to show you around! Call on 01279 501 500 or press the button below