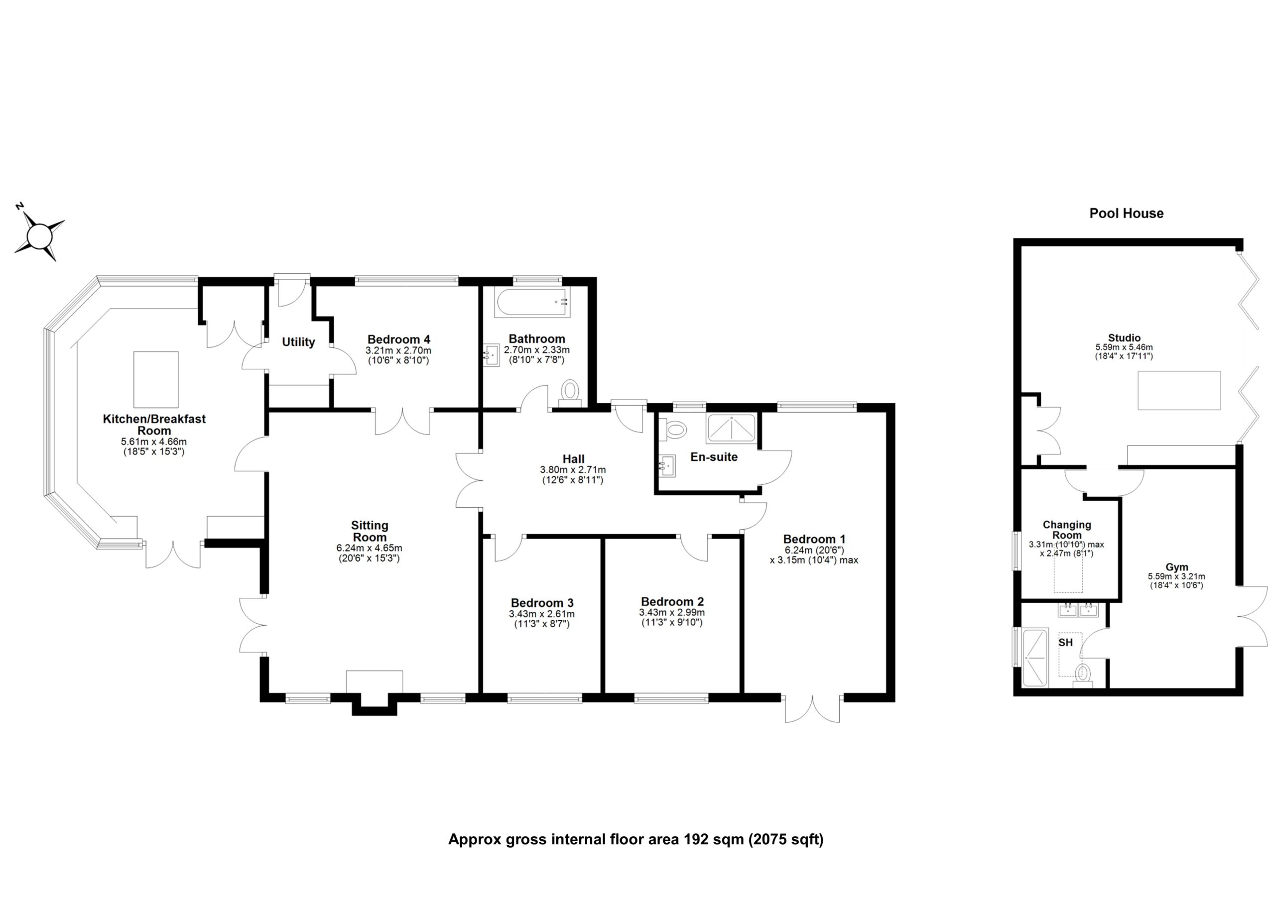
The internal accommodation comprises: A spacious entrance hallway, leading to a large sitting room, separate dining room and a kitchen/breakfast room with great views over the garden and a separate utility room and large larder. There are three double bedrooms and a family bathroom. The principal bedroom benefits from its own ensuite shower room and patio doors which opens onto the owners ‘Gin deck’ which is a great spot to enjoy the evenings sunshine with views over the garden.
A particular feature of this fabulous home is its garden. The property sits centrally within its plot meaning that you have the benefit of lush views from all of the internal rooms. The property is accessed via a gated entrance which leads to ample driveway parking. There is a path and step which lead to the front of the house. The garden wraps around the property and offers various sections. A separate pool house, with gym, changing room, shower room and studio (equipped with kitchen equipment) opens on to a sun terrace and swimming pool. An orchard and west facing sun terraced as well as a large expanse of lawn complete the gardens.
The River Stort and lock are in close proximity offering beautiful country walks.


Then all you need to do is get in touch to ask any questions or arrange a viewing. We’d love to show you around! Call on 01279 501 500 or press the button below