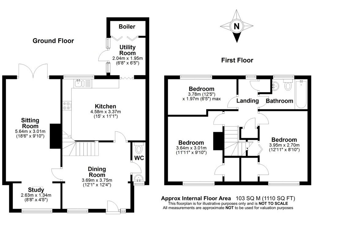
Arranged over two floors the internal accommodation in brief comprises of; entrance into the dining room with access to the cloakroom and sitting room. The study sits off the sitting room which has a feature fireplace and French doors to the garden. The kitchen is fully fitted with a range of base and eye level units and access to a separate utility/boiler room.
Stairs to the first floor access three bedrooms and a family bathroom. The principal and second bedrooms both benefit from built in wardrobes.
Gardens to the rear are mainly laid to lawn with an entertainment area, established planting in fence surround and gated rear access.


Then all you need to do is get in touch to ask any questions or arrange a viewing. We’d love to show you around! Call on 01279 501 500 or press the button below