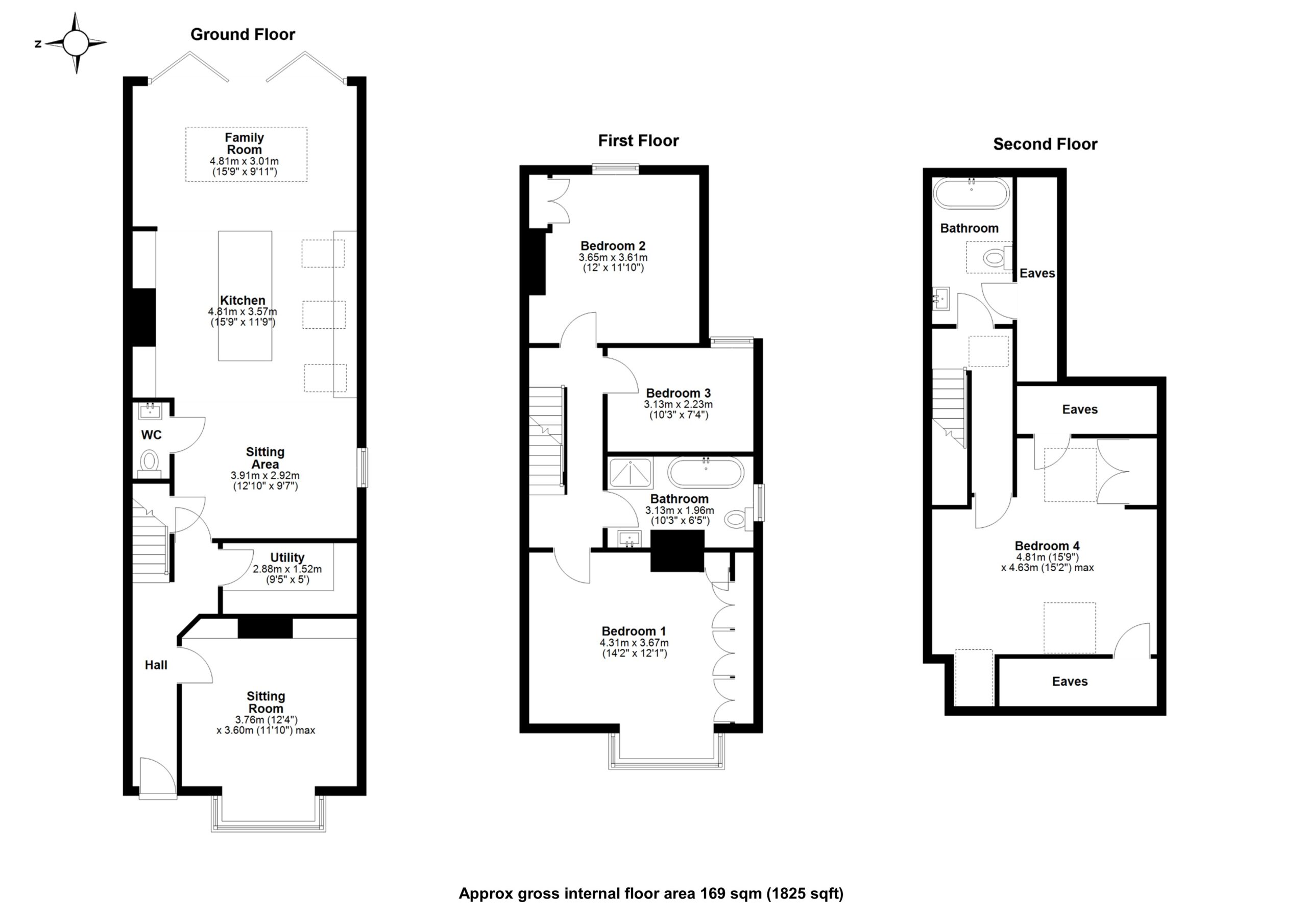
As a result of recent modernisation and renovation, this well presented and maintained 'turn key' semi detached property offers accommodation arranged over three floors and in brief comprises; entrance hall with understairs cupboard and access to the sitting room with feature fireplace and bay fronted window. A fitted utility room and an open plan kitchen/sitting, wc., and family room; the kitchen offers a range of base and eye level units, a central island and bi-fold doors with access to the garden. Stairs from the hall lead to three bedrooms and a four piece family bathroom on the first floor. The principal bedroom with a bay fronted window and second bedroom on the first floor both have fitted wardrobes. A further flight of stairs lead to the second floor; bedroom four with eaves storage as well as a three piece bathroom.
Immediately to the rear of the property the landscaped garden enjoys a patio entertainment area with steps ascending to an artificial lawn, raised borders and decked entertainment area all in fence surround. Gated side access leads to the front of the property, an established front garden and an off street parking space.


Then all you need to do is get in touch to ask any questions or arrange a viewing. We’d love to show you around! Call on 01279 501 500 or press the button below