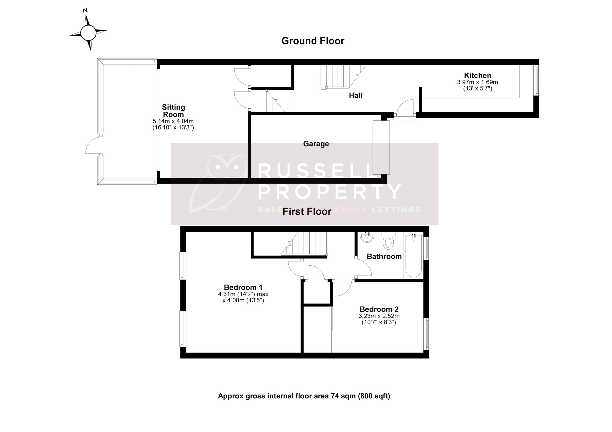
Internally, the accommodation is arranged over two floors and comprises; entrance hall, kitchen with a range of base and eye level units. The sitting room has been extended into a conservatory which opens into the garden. Stairs from the hall to the first floor landing access two double bedrooms and a three piece family bathroom. The second bedroom benefits from built in wardrobes.
Immediately, to the rear is a decked and patio entertainment area with gardens laid to lawn in fence surround. With a driveway to the front of the property and a carport that leads to a single garage.


Then all you need to do is get in touch to ask any questions or arrange a viewing. We’d love to show you around! Call on 01279 501 500 or press the button below