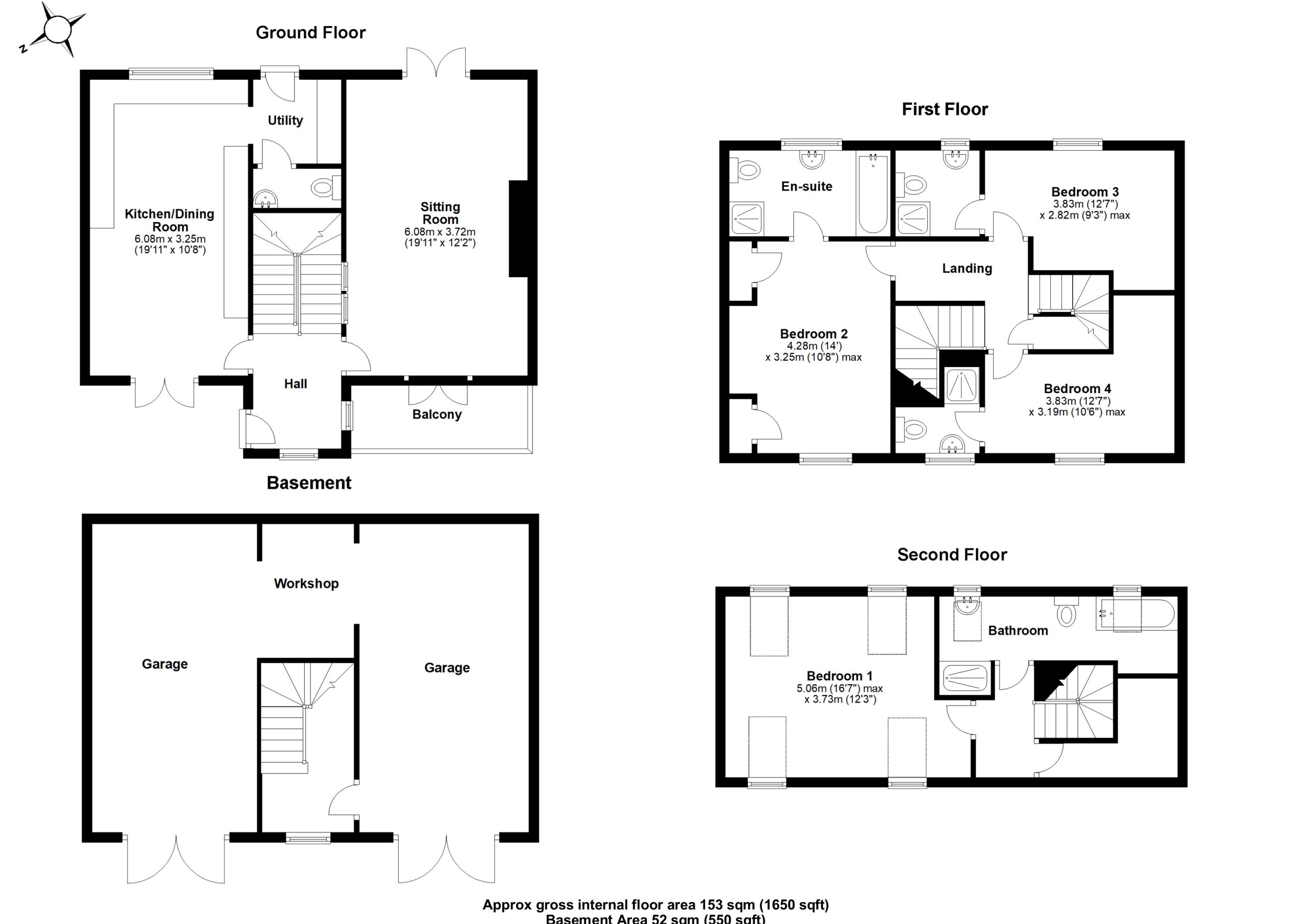
The spacious internal accommodation is arranged over three floors and comprises; Spacious entrance hallway which gives access to the bright and sizeable sitting room which benefits from an exposed brick fireplace with log burner feature and French doors onto the garden, furthermore the sitting room has access to the balcony where you can sit and enjoy a morning coffee with views of the Windmill. To the left of the entrance hallway you will be greeted by a beautiful kitchen/diner with access to the utility room and W.C, the light and airy kitchen also benefits from an exposed brick feature and patio doors from the utility onto the garden.
Stairs rise from the entrance hall to the first floor where there are three double bedrooms; all three bedrooms benefit from their own en-suite whilst bedroom two further benefits from built in wardrobes and a four piece en-suite. Stairs rise again to the second floor where you will find the light and airy principal bedroom with access to a four piece en-suite.
Externally the property is approached via a large driveway and offers parking for several cars with access to the integral double garage/workshop which gives fantastic scope to convert into a cinema room/games room, the garage benefits from central heating and running water; furthermore, there is access to the garage internally from the entrance hallway. To the rear is a beautifully maintained private rear garden which is mainly laid to lawn with planted borders and a patio immediately to the rear, perfect for outdoor entertaining. To the right of the garden are stairs which access a private decked area which overlooks the garden.



Then all you need to do is get in touch to ask any questions or arrange a viewing. We’d love to show you around! Call on 01279 501 500 or press the button below