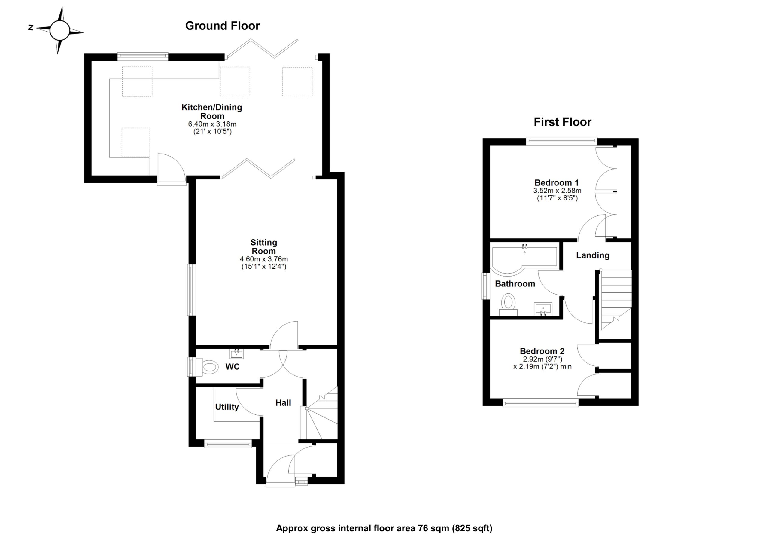
Following extension and refurbishment throughout, this well presented property offer accommodation arranged over two floors and in brief comprises; entrance hall with understairs storage, a large utility room and separate wc. The sitting room is spacious and has bi-fold doors that lead through to the open plan kitchen/dining room. With a range of base and eye level units, fitted appliances and breakfast bar, bi-fold doors opening from the dining room to the garden.
Stairs from the hallway access the first floor; two double bedrooms and a family bathroom. Both bedrooms have built in wardrobes.
Gardens to the rear are well maintained with a patio entertainment area, lawn and raised borders, in fence surround. Gated side access leads to the front of the property where block paved driveway provides off street parking; further parking is allocated in spaces en-bloc.


Then all you need to do is get in touch to ask any questions or arrange a viewing. We’d love to show you around! Call on 01279 501 500 or press the button below