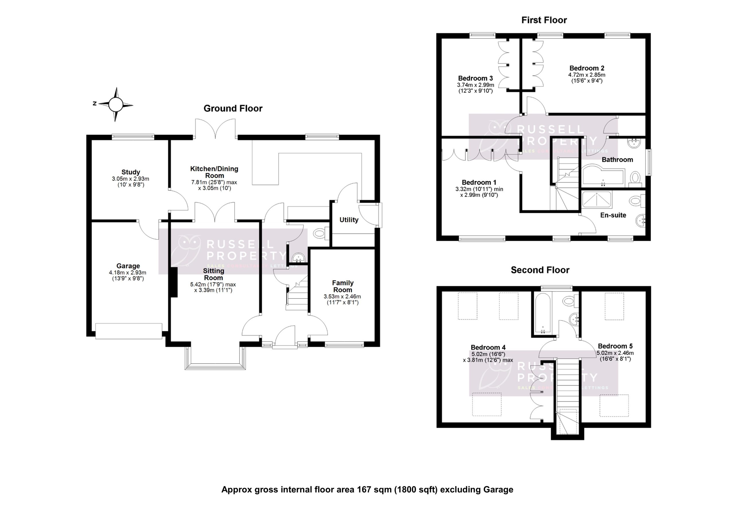
Internally, the property is well presented throughout and extended with the accommodation arranged over three floors. In brief the spacious accommodation comprises of; entrance hall with an understairs cupboard and cloakroom. A family room, sitting room with a bay fronted window and fireplace. The kitchen/dining room is fully fitted with a range of base and eye level units, French doors to the garden and a separate utility room with door to the side of the property. There is access from the dining room to a study and the integral garage. Stairs from the hall access the first floor; three double bedrooms, all of which benefit from fitted wardrobes; a three piece family bathroom. The principal bedroom on this floor also benefits from an ensuite shower room. Two further bedrooms and a bathroom are located on the second floor.
Gardens to the rear are landscaped, laid to lawn with raised beds and patio entertainment areas;
gated side access leads to the single garage and driveway which provides off street parking for a number of vehicles.


Then all you need to do is get in touch to ask any questions or arrange a viewing. We’d love to show you around! Call on 01279 501 500 or press the button below