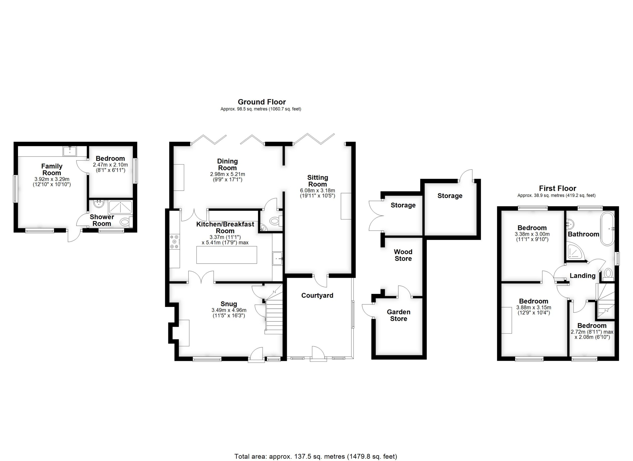
Arranged over two floors, the internal accommodation in brief comprises; entrance into a snug with fireplace, understairs storage and stairs to the first floor. A good sized kitchen/breakfast room with island, built in appliances and a range of base and eye level units. The dining room also has a feature fireplace and bi-fold doors to the rear garden. The sitting room has a feature log burner fireplace and bi-fold doors to the garden. Stairs from the sung access the first floor, three bedrooms and a family bathroom with shower.
A private courtyard garden sits to the side of the property. A further garden with established planting and patio entertainment area and swimming pool completes the enclosed rear garden.
A separate annexe offers a family room with kitchenette, bedroom and shower room.

Then all you need to do is get in touch to ask any questions or arrange a viewing. We’d love to show you around! Call on 01279 501 500 or press the button below